清华同衡风景旅游研究中心

RESEARCH CENTER FOR TOURISM AND SCENERY

返回清华同衡官网首页
  • 首页

  • 中心概况

    • 中心简介
    • 中心业务所
    • 获奖信息
  • 新闻中心

  • 项目展示

  • 科研成果

  • 联系我们

more

学术动态Academic Trends

  • 王彬汕 贾倩 | 加强智慧旅游创新应用 推动旅...
  • 邬东璠 王克敏 | 度假区要树立“资源与环境并...
  • 邬东璠 王晨雨 | 旅游度假区要树立“核心度假...
  • 旅游度假区高质量发展论坛成功举办
  • 北京什刹海商业化程度和游客行为大数据分析
more
我院快讯Institute Express
  • 清华同衡风景旅游研究中心成立

  • 风景旅游研究中心风景旅游一所正式成立

  • 清华同衡旅游所开展《广西旅游业发展“...

  • 《阿鲁科尔沁旗旅游发展规划总体规划》...

1234
  • 清华同衡王彬汕主任入选中国旅游景区协会专家委员...
  • 王彬汕主任接受《中国旅游报》采访,解读度假区新...
  • 清华同衡海南国际旅游岛先行试验区概念规划喜获国...
  • 王彬汕所长:不能只局限于旅游来思考“丝绸之路”...
  • 潘运伟丨A study on threat factors of World Her...
推荐项目Project
  • 浙江舟山市“十里莲花大道”活力业态规...

    《“十四五”海洋经济发展规划》提出“走依海富国、以海强国、人海和谐、合作共赢的发展道路,加快建设中国...

  • 山西祁县旅游总体发展规划

    在法开署和法国In Extenso公司的主导下,结合祁县政府意见,对祁县的区位、发展机遇、文化特色、...

  • 莫干山·2019年德清县民宿产业大数据...

    通过对网络游记、在线旅行代理商点评数据、手机信令数据及电子地图数据等互联网大数据的收集整理与分析,研...

  • 浙江舟山市东极岛战略发展规划

    规划提出打造“日出东方”国家地理新地标、构造文艺浪漫海岛极致体验新高地、塑造长三角高品质海岛休闲新典...

您现在的位置:首页 / 项目案例 / 正文
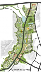
济南中海九曲片区概念规划设计方案
2013年09月17日    清华同衡城乡住房与社区研究中心

所属分类: 详细规划与城市设计

项目地点:山东省

设计单位:清华同衡城乡住房与社区研究中心

完成时间:2010年

图片展示
项目简介

项目用地位于中国济南市南部,市中区九曲片区,是城市中轴线的南端,与济南市中心区联系紧密。九曲片区位于老城建设区同南部绿色生态区的交汇点,处于济南市政府“南控”方向,土地稀缺,区位价值明显,是城市边缘地带的、功能定位为以居住为主的大型生态社区。该方案为邀投标中选方案。

项目规模:总用地面积约245公顷。容积率1.25。

设计时间:2009--2010年

设计的重点和难点:

1、强调交通分析与社区配套之间的关系,营造富于本土特征的超大型高端社区生活环境;

2、通过解读九曲社区结构,达到形式与功能的统一;

3、完善商业、医疗等配套设施;

4、形式上,通过三个体系来架构整体形态关系(快速道、内部机动车体系、慢行系统);内容上,通过三种主题(商业、文化、生态)的组合比例来调和社区精神。

设计理念:

1、前瞻与可持续性的设计;

2、传承独特的地方文化;

3、创造合理的经济目标;

4、便捷的交通系统;

5、亲近自然的旅游地,有活力的社区公园。

关于我们 | 组织结构 | 人才招聘 | 联系我们

地址:北京市海淀区清河中街清河嘉园东区甲1号楼16-25层 邮编:100085 电话:010-82819000 备案序号:京ICP备 05030709号-1

顶部

微博

微信